Vés al contingut principal

Configuració de les galetes

Fem servir galetes per assegurar les funcionalitats bàsiques del lloc web i per a millorar la teva experiència en línia. Pots configurar i acceptar l'ús de galetes, i modificar les teves opcions de consentiment en qualsevol moment.

Essencials

Preferències

Analítiques i estadístiques

Màrqueting

Aquesta proposta ha estat acceptada perquè:

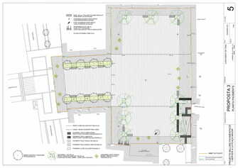
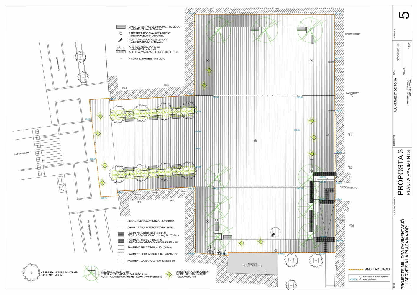
Proposta reforma 3

Avatar: Proposta oficial Proposta oficial

Acceptada

La proposta 3 contempla:

  • La superfície d’actuació a la plaça és de 1.730 m2, queda fora de l’àmbit els 44,30 m2 de la zona de jocs infantils actualment amb paviment de cautxú continu.

  • Col·locació de paviment apte per a la circulació rodada, espai central amb lloses de 60x40, perimetralment envoltada per llambordes.

  • Es manté el parc infantil.

  • Combinació de plantació de nou arbrat (9) amb jardineres d’acer corten (12).

  • Limitació de l’accés rodat amb pilones i jardineres.


Tenint en compte els usos previstos, l’accessibilitat i l’estat actual de conservació, així com el pressupost previst per l’execució de l’obra, totes les propostes contemplen:

  • Nou paviment a tota la plaça, seguint amb la tipologia i color que l’existent al carrer Antoni Figueras, tram del carrer Joan Maragall i plaça de l’Hostal, així com la futura vorera d’accés a la Biblioteca per el carrer de la Font i la urbanització de la vorera a la plaça 1 d’Octubre.

  • Assegurar un correcte creixement de l’arbrat existent (magnòlies) amb increment de les dimensions d’escocell així com la incorporació de nou arbrat (acer fremanii) a la Plaça, per disposar de més zones d’ombra.

  • Substitució de l’enllumenat existent per noves columnes i lluminàries tipus LED per reduir el consum i millorar l’eficiència energètica.

  • Substitució de les reixes lineals de recollida d’aigües, així com els col·lectors d’evacuació que connecten amb el carrer de la Font.

  • Nou quadre elèctric per a connexió en diferents usos, amb soterrament de la línia d’alimentació provinent del quadre existent.

  • Instal·lar mobiliari urbà: bancs, font, aparcabicicletes, etc.


Plànols proposta 3
Descarregar fitxer
Comentari

Confirmar

Si us plau, inicia la sessió

La contrasenya és massa curta.

Compartir